De gemeente Westland is gestart met een spannend herontwikkelingsproject in Monster, na de beslissing om het gemeentekantoor te verplaatsen naar Naaldwijk. Deze transformatie richt zich op de herontwikkeling van de voormalige kantoorlocatie en de omliggende gebieden in het centrum van Monster. De keuze om het oude kantoor te slopen is ingegeven door een visie om de omgeving nieuw leven in te blazen, nieuwe mogelijkheden voor sociale interactie te creëren en de verbinding met het winkelgebied te verbeteren. In reactie op de grote vraag naar woningen is het plan goedgekeurd voor de bouw van een nieuw blok met 40 appartementen, gericht op starters en senioren.
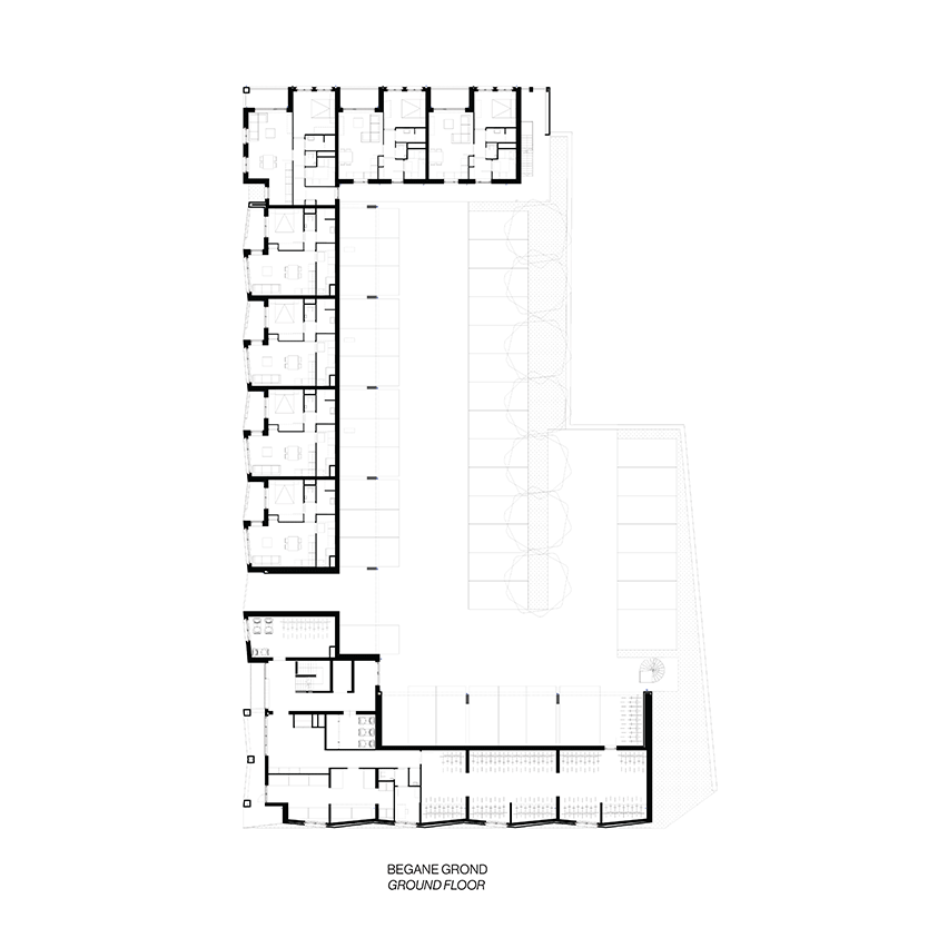
Het ontwerp legt de nadruk op architectonische integratie en harmonie met de lokale omgeving. Het U-vormige blok bevat 40 zorgvuldig ingedeelde appartementen. De noordelijke vleugel, die uitkijkt op de hoofdstraat, heeft een kenmerkend zadeldak dat de charme vergroot en goed aansluit bij de omliggende architectuur. De twee andere vleugels hebben een opvallend verticale vormgeving, wat een dynamiek toevoegt aan de gevel en tegelijkertijd de publieke ruimte omlijst.
Om tegemoet te komen aan verschillende woonbehoeften, is er een gevarieerd aanbod aan appartementen, waarbij essentiële voorzieningen zich op de begane grond bevinden om de ruimte optimaal te benutten. De herontwikkeling brengt ook een frisse, groene impuls in het openbare domein, doordat het groen van het huidige perceel doorloopt in het nieuwe ontwerp, waardoor er levendige plekken ontstaan voor gemeenschapsinteractie en verbinding.
Status: In aanbouw
Team: Johan de Wachter, Katarína Karásková, Fleur Verhoeff ,Nicolette Marzovilla, Gongbu Han, Liene Medniece, Marieke van Hensbergen, Joris van Arkel
Samenwerking: DWA, Boogards Constructiebureau, ZRI
Opdrachtgever: Arcade Wonen, Weboma
Locatie: Monster, NL
Programma: 40 appartementen voor starters en senioren
De gemeente Westland is gestart met een spannend herontwikkelingsproject in Monster, na de beslissing om het gemeentekantoor te verplaatsen naar Naaldwijk. Deze transformatie richt zich op de herontwikkeling van de voormalige kantoorlocatie en de omliggende gebieden in het centrum van Monster. De keuze om het oude kantoor te slopen is ingegeven door een visie om de omgeving nieuw leven in te blazen, nieuwe mogelijkheden voor sociale interactie te creëren en de verbinding met het winkelgebied te verbeteren. In reactie op de grote vraag naar woningen is het plan goedgekeurd voor de bouw van een nieuw blok met 40 appartementen, gericht op starters en senioren.
Het ontwerp legt de nadruk op architectonische integratie en harmonie met de lokale omgeving. Het U-vormige blok bevat 40 zorgvuldig ingedeelde appartementen. De noordelijke vleugel, die uitkijkt op de hoofdstraat, heeft een kenmerkend zadeldak dat de charme vergroot en goed aansluit bij de omliggende architectuur. De twee andere vleugels hebben een opvallend verticale vormgeving, wat een dynamiek toevoegt aan de gevel en tegelijkertijd de publieke ruimte omlijst.
Om tegemoet te komen aan verschillende woonbehoeften, is er een gevarieerd aanbod aan appartementen, waarbij essentiële voorzieningen zich op de begane grond bevinden om de ruimte optimaal te benutten. De herontwikkeling brengt ook een frisse, groene impuls in het openbare domein, doordat het groen van het huidige perceel doorloopt in het nieuwe ontwerp, waardoor er levendige plekken ontstaan voor gemeenschapsinteractie en verbinding.
Status: In aanbouw
Team: Johan de Wachter, Katarína Karásková, Fleur Verhoeff ,Nicolette Marzovilla, Gongbu Han, Liene Medniece, Marieke van Hensbergen, Joris van Arkel
Samenwerking: DWA, Boogards Constructiebureau, ZRI
Opdrachtgever: Arcade Wonen, Weboma
Locatie: Monster, NL
Programma: 40 appartementen voor starters en senioren
De gemeente Westland is gestart met een spannend herontwikkelingsproject in Monster, na de beslissing om het gemeentekantoor te verplaatsen naar Naaldwijk. Deze transformatie richt zich op de herontwikkeling van de voormalige kantoorlocatie en de omliggende gebieden in het centrum van Monster. De keuze om het oude kantoor te slopen is ingegeven door een visie om de omgeving nieuw leven in te blazen, nieuwe mogelijkheden voor sociale interactie te creëren en de verbinding met het winkelgebied te verbeteren. In reactie op de grote vraag naar woningen is het plan goedgekeurd voor de bouw van een nieuw blok met 40 appartementen, gericht op starters en senioren.
Het ontwerp legt de nadruk op architectonische integratie en harmonie met de lokale omgeving. Het U-vormige blok bevat 40 zorgvuldig ingedeelde appartementen. De noordelijke vleugel, die uitkijkt op de hoofdstraat, heeft een kenmerkend zadeldak dat de charme vergroot en goed aansluit bij de omliggende architectuur. De twee andere vleugels hebben een opvallend verticale vormgeving, wat een dynamiek toevoegt aan de gevel en tegelijkertijd de publieke ruimte omlijst.
Om tegemoet te komen aan verschillende woonbehoeften, is er een gevarieerd aanbod aan appartementen, waarbij essentiële voorzieningen zich op de begane grond bevinden om de ruimte optimaal te benutten. De herontwikkeling brengt ook een frisse, groene impuls in het openbare domein, doordat het groen van het huidige perceel doorloopt in het nieuwe ontwerp, waardoor er levendige plekken ontstaan voor gemeenschapsinteractie en verbinding.
Status: In aanbouw
Team: Johan de Wachter, Katarína Karásková, Fleur Verhoeff ,Nicolette Marzovilla, Gongbu Han, Liene Medniece, Marieke van Hensbergen, Joris van Arkel
Samenwerking: DWA, Boogards Constructiebureau, ZRI
Opdrachtgever: Arcade Wonen, Weboma
Locatie: Monster, NL
Programma: 40 appartementen voor starters en senioren
